Nieuwbouwwoning Sint-Lambrechts-Herk

Nieuwbouwwoning Bloemenhofstraat 18 Sint-Lambrechts-Herk

1 woning beschikbaar

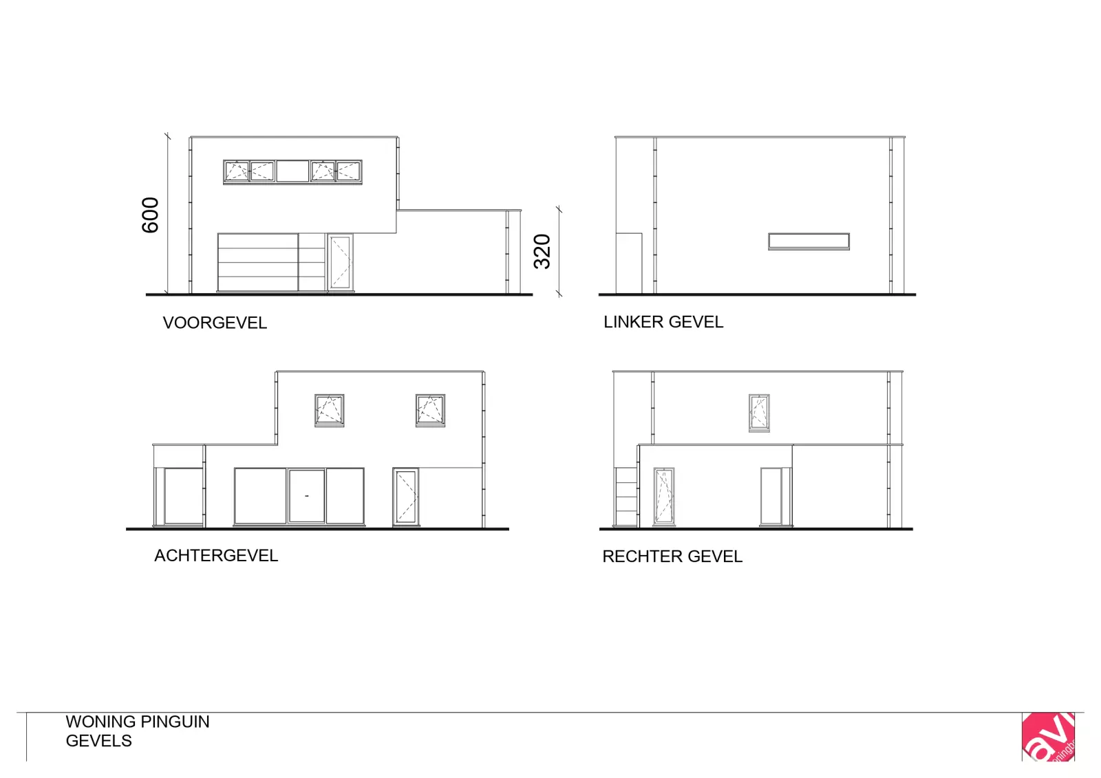
Open Moderne bebouwing in een groene omgeving

In de Bloemenhofstraat 18 in Sint-Lambrechts-Herk vinden we deze prachtige open bebouwing van 14a 89ca groot terug, met achteraan een weids uitzicht over de velden.

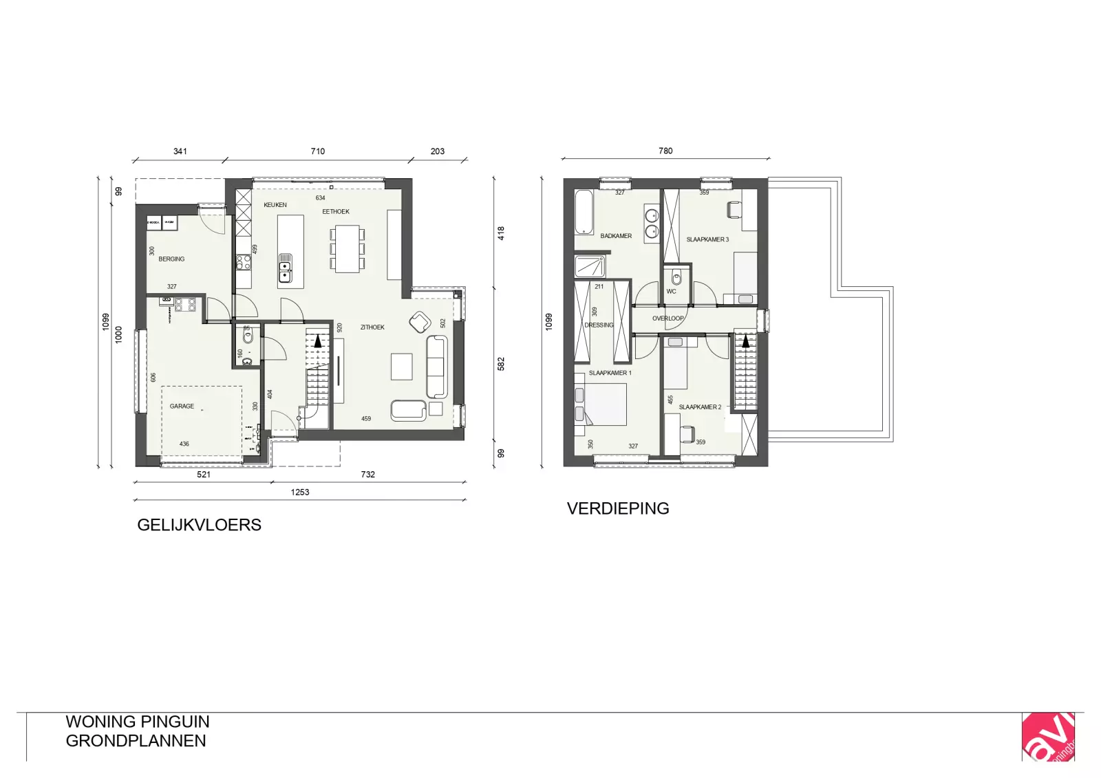
Op dit knap perceel stelt AVL deze strakke, energiezuinige woning (bruto opp. 203m2) voor, bestaande uit een ruime inpandige garage en aparte berging, een inkomhal met toilet, open keuken met keukeneiland, eethoek en ruime zithoek op het gelijkvloers. Op de verdieping zijn 3 slaapkamers voorzien, waarvan 1 met dressing. Verder komen we boven nog een badkamer met douche, ligbad en dubbele lavabo tegen en een apart toilet in de nachthal.

Dit is slechts een voorgestelde woning en kan dus nog aangepast worden naar je eigen smaak en wensen. Ook de binnenafwerking kan je nog volledig zelf gaan kiezen bij onze partners. Een CASCO+ woning (zonder keuken, badkamer, vloeren, binnendeuren en trap) behoort ook tot de mogelijkheden, voor wie graag zelf de handen uit de mouwen steekt.

We garanderen voor deze woning een A+ energielabel (max. E0) door het gebruik van de meest hedendaagse technieken zoals een warmtepomp (lucht-water), ventilatie D+ systeem, zonnepanelen en vloerverwarming. Met deze woning ben je alvast klaar voor de toekomst.

Dit project realiseren we in samenwerking met ERA Nobis.

Wens je meer info over deze woningen?

Plan je vrijblijvende afspraak met bouwadviseur Michiel via onderstaand formulier.

Ter bescherming van uw persoonsgegevens maakt Browsbox gebruik van de reCAPTCHA-technologie van Google. Het Privacybeleid en de Servicevoorwaarden van Google zijn daarop van toepassing.
Nieuwbouwwoning, open moderne woning, Sint-Lambrechts-Herk

Indelings-en verkavelingsplan

SLEUTEL-OP-DE-DEURAFWERKING

WAT HOUDT DAT JUIST IN?

  • Ruwbouw winddicht
  • Sanitaire leidingen (inclusief hergebruik van regenwater)
  • Elektriciteit
  • verwarming via warmtepomp met vloerverwarming 
  • Pleisterwerken
  • Isolatiewerken en chape
  • EPB berekening
  • Ventilatiesysteem D+
  • Kostprijs architect en veiligheidscoördinatie inclusief
  • Zonnepanelen
  • keuken
  • Sanitaire toestellen
  • Tegelvloeren op het gelijkvloers en in de badkamer
  • Binnendeuren in grondlaag
  • trap in rubberwood
  • Voegwerken

PRIJS SLEUTEL OP DE DEUR € 710 000

€ 710 000 excl. alle kosten op grond en constructie
€ 838 000 incl. alle kosten op grond en constructie

Deel dit project

of bekijk alle projecten

Woningen

  • Nieuwbouwwoning Sint-Lambrechts-Herk
    EPB: A+

    Nieuwbouwwoning Sint-Lambrechts-Herk

    Moderne woning
    203m2
    3
    2
Maak een afspraak