Nieuwbouwwoning te Scherpenheuvel- Zichem

Nieuwbouwwoning te Scherpenheuvel- Zichem - Steenweg Scherpenheuvel

VERKOCHT

Nieuwbouwproject IN DE STEENWEG Scherpenheuvel TE Zichem

Ben je op zoek naar de perfecte plek om je droomwoning te realiseren? Deze prachtige bouwgrond (huisnummer 50) met een landelijk karakter biedt je de ideale mogelijkheid om je woonwensen waar te maken. Gelegen in Zichem, op de Steenweg Scherpenheuvel, biedt dit perceel een combinatie van natuur en bereikbaarheid. Met een oppervlakte van 10a84ca, perfect voor het bouwen van een alleenstaande woning, en een grondbreedte van 34 meter heb je hier alle ruimte die je nodig hebt om uw woondroom waar te maken. 

De bouwvoorschriften laten een maximale kroonlijsthoogte van 6 meter toe, wat overeenkomt met 2 volledige bouwlagen, en een maximale bebouwde oppervlakte van 220 m². De P-score A geeft aan dat de grond niet gelegen is in een overstromingsgevoelig gebied, wat extra gemoedsrust biedt bij je bouwplannen.

Geniet van het rustige, groene en landelijke karakter van Zichem, terwijl u toch alle nodige voorzieningen binnen handbereik hebt. Steenweg Scherpenheuvel biedt een vlotte verbinding naar nabijgelegen steden en dorpen. De nabijheid van de E314 zorgt voor vlotte verbindingen naar andere steden zoals zoals o.a. Diest en Leuven. 

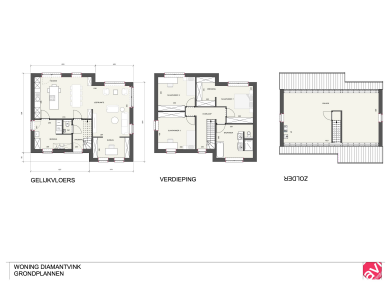
Het voorbeeld op de website is een landelijke woning van 189 m2, bestaande uit inkomhal, toilet, ruime berging, bureau, wasplaats, keuken, open leefruimte op het gelijkvloers. Op de verdieping vinden we 3 ruime slaapkamers waarvan eentje met een grote dressing en een badkamer met bad en douche. Ook is er een ruime zolder met technische ruimte voorhanden.

Uiteraard kan deze woning nog anders ingedeeld en/of aangepast worden. De woning biedt je alvast alle zekerheden en garanties inzake EPB waarden, een warmtepomp en 8 zonnepanelen zijn reeds voorzien.

 

Dit project wordt aangeboden i.s.m. Nancy Aerts vastgoed.

Bel bouwadviseur Luc 011/450 280  voor een vrijblijvende afspraak.

Casco afwerking

  • Ruwbouw winddicht
  • Sanitaire leidingen (incl. hergebruik regenwater)
  • Elektriciteit
  • Vloerverwarming op LW/warmtepomp
  • Pleisterwerken
  • Isolatiewerken en chape
  • EPB berekening 
  • Ventilatie D+
  • Kostprijs architect en veiligheidscoördinatie inclusief
  • 8 zonnepanelen

Sleutel op de deur afwerking

  • Casco
  • Afgewerkte keuken
  • Sanitaire toestellen
  • Tegelvloeren op het gelijkvloers en in de badkamer
  • Binnendeuren
  • Voegwerken
  • Trap in rubberwood

Deel dit project

of bekijk alle projecten

Woningen

  • Nieuwbouwwoning te Scherpenheuvel- Zichem
    VERKOCHT
    EPB: A

    Nieuwbouwwoning te Scherpenheuvel- Zichem

    Landelijke woning
    189m2
    3
    3
Maak een afspraak