Nieuwbouwwoning Beringen

Nieuwbouwwoning Wurvennestraat lot 14 + 15

2 woningen beschikbaar

HalfOPEN MODERNE BEBOUWING IN EEN RUSTIGE OMGEVING

Deze kleinschalige verkaveling in Korspel, een aangename deelgemeente van Beringen, biedt een rustige woonomgeving op een locatie waar alles vlot bereikbaar is. De straat heeft een uitgesproken residentieel karakter met weinig doorgaand verkeer, terwijl dagelijkse voorzieningen zoals winkels en scholen zich op korte afstand bevinden.

De loten zijn bestemd voor halfopen bebouwing en hebben een oppervlakte van 3a38 voor lot 15 en 6a79 voor lot 14. Ook de omgeving sluit perfect aan bij wie op zoek is naar een evenwicht tussen rust en bereikbaarheid. Groene zones en wandelmogelijkheden bevinden zich in de nabijheid, terwijl de be-MINE-site met winkels, horeca en recreatie op korte afstand ligt. Dankzij een nabijgelegen treinhalte is ook het openbaar vervoer vlot bereikbaar. Voor gezinnen vormt de aanwezigheid van een lagere school in de onmiddellijke omgeving een bijkomende troef.

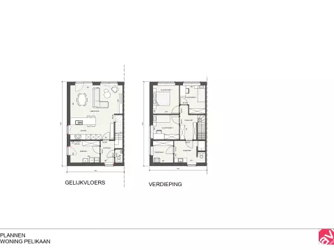
De voorgestelde moderne woning heeft een oppervlakte van 136m2. Er is een eet- en zithoek voorzien en een keuken met berging. Boven zijn er alvast 3 slaapkamers en een badkamer met douche. Warmtepomp, vloerverwarming, zonnepanelen, ventilatie D+ zijn reeds voorzien.

Alle keuzes i.v.m. de afwerking van de woning zijn naar wens bespreekbaar. Ook het ontwerp van de woning is slechts een voorstel en kan volledig met jou op maat uitgewerkt worden. Vanaf casco afwerking biedt de woning je alvast alle zekerheden en garanties en van daaruit kan je zorgeloos verder afwerken. Een volledig afgewerkte woning is natuurlijk ook mogelijk!

Deze bouwgrond biedt een interessante opportuniteit voor wie een halfopen woning wil realiseren op een rustig gelegen perceel met open zicht, binnen een verkaveling waar ligging, oriëntatie en woonkwaliteit mooi samenkomen.


Dit project realiseren we i.s.m. Nancy Aerts Vastgoed

Wens je meer info over deze woningen?

Plan je vrijblijvende afspraak met bouwadviseur Luc via onderstaand formulier.

Ter bescherming van uw persoonsgegevens maakt Browsbox gebruik van de reCAPTCHA-technologie van Google. Het Privacybeleid en de Servicevoorwaarden van Google zijn daarop van toepassing.
Nieuwbouwwoning, halfopen bebouwing, moderne nieuwbouwwoning

HALF OPEN BEBOUWING VANAF € 309 000 EXCL. ALLE KOSTEN OP GROND EN CONSTRUCTIE

Half open moderne bebouwing, beringen, nieuwbouw

Lot 14

PRIJS CASCO

€ 335 000 excl. alle kosten op grond en constructie
€ 409 000 incl. alle kosten op grond en constructie

PRIJS SLEUTEL-OP-DE-DEUR 

€ 359 000 excl. alle kosten op grond en constructie
€ 439 000 incl. alle kosten op grond en constructie

Half open moderne bebouwing, beringen, nieuwbouw

Lot 15

PRIJS CASCO

€ 309 000 excl. alle kosten op grond en constructie
€ 377 000 incl. alle kosten op grond en constructie

PRIJS SLEUTEL-OP-DE-DEUR 

€ 335 000 excl. alle kosten op grond en constructie
€ 409 000 incl. alle kosten op grond en constructie

CASCO AFWERKING

  • Ruwbouw winddicht 
  • Sanitaire leidingen (inclusief hergebruik van regenwater)
  • Elektriciteit
  • Vloerverwarming en warmtepomp
  • Pleisterwerken
  • Isolatiewerken en chape
  • EPB berekening
  • Ventilatiesysteem D+
  • 8 zonnepanelen
  • Kostprijs architect en veiligheidscoördinatie inclusief

SLEUTEL OP DE DEUR

  • casco afwerking
  • Afgewerkte keuken
  • Sanitaire toestellen
  • Tegelvloeren op het gelijkvloers en in de badkamer
  • Binnendeuren
  • Voegwerken
  • Trap in rubberwood

INDELINGS- EN VERKAVELINGSPLAN 

Deel dit project

of bekijk alle projecten

Woningen

  • Nieuwbouwwoning Beringen Lot 15
    EPB: A+

    Nieuwbouwwoning Beringen Lot 15

    Moderne woning
    136m2
    3
    2
  • Nieuwbouwwoning Beringen Lot 14
    EPB: A+

    Nieuwbouwwoning Beringen Lot 14

    Moderne woning
    136m2
    3
    2
Maak een afspraak