Nieuwbouwwoning te Zonhoven

Nieuwbouwwoning Hasseltse Beverzakstraat lot 2 3520 Zonhoven

1 woning beschikbaar

HALFopen BEBOUWING OP EEN GUNSTIGE LOCATIE

Hier wordt een bouwgrond aangeboden in een rustige en groene omgeving nabij de Kempische Steenweg te Zonhoven. Op slechts een steenworp afstand van Hasselt en 5 minuten van de autostrade geniet u van zowel rust als uitstekende bereikbaarheid. Bovendien ligt het perceel dicht bij diverse winkels waaronder een deel supermarkten.
Het gaat hier over Lot 2 op het verkavelingsplan. Een groot stuk grond van maar liefst 11are 47ca, perfect voor het bouwen van een halfopen bebouwing met een ruime tuin.

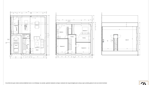
De voorgestelde moderne woning heeft een oppervlakte van 209m2. Er is een eet- en zithoek voorzien en een ruime keuken met berging/inpandige carport. Ook zijn er 3 slaapkamers en een badkamer met bad en douche voorzien. Warmtepomp, vloerverwarming, zonnepanelen, ventilatie D+ zijn reeds voorzien.

Alle keuzes i.v.m. de afwerking van de woning zijn naar wens bespreekbaar. Ook het ontwerp van de woning is slechts een voorstel en kan volledig met jou op maat uitgewerkt worden. Vanaf casco afwerking biedt de woning je alvast alle zekerheden en garanties en van daaruit kan je zorgeloos verder afwerken. Een volledig afgewerkte woning is natuurlijk ook mogelijk! 

Dit project realiseren we in samenwerking met Notaris Mariën in Pelt.

Wens je meer informatie over deze woning?

Plan je vrijblijvende afspraak met bouwadviseur Luc via onderstaand formulier.

Ter bescherming van uw persoonsgegevens maakt Browsbox gebruik van de reCAPTCHA-technologie van Google. Het Privacybeleid en de Servicevoorwaarden van Google zijn daarop van toepassing.
Nieuwbouwwoning, halfopen bebouwing, eigentijdse woning

INDELINGs- EN VERKAVELINGSPLAN 

SLEUTEL OP DE DEUR

- Ruwbouw winddicht

- Sanitaire leidingen (inclusief hergebruik van regenwater)

- Elektriciteit

- Vloerverwarming en warmtepomp

- Pleisterwerken

- Isolatiewerken en chape

- EPB berekening

- Ventilatiesysteem D+

- 8 Zonnepanelen

- Voegwerken

- Afgewerkte keuken

- Sanitaire toestelen

- Tegelvloeren op het gelijkvloers en in de badkamer

- Binnendeuren 

- Trap in rubberwood

- Kostprijs architect en veiligheidscoördinatie inclusief

PRIJS SLEUTEL OP DE DEUR € 495 000

€ 495 000 excl. alle kosten op grond en constructie
€ 605 000 incl. alle kosten op grond en constructie

Deel dit project

of bekijk alle projecten

Maak een afspraak